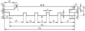
DESKA ELEWACYJNA SOFTLINE UTP 19X146 KLASA AB ŚWIERK SKANDYNAWSKI
Za sztukę
DESKA ELEWACYJNA UYV/S 21X145 JEDNOSTRONNIE SZORSTKA KLASA AB ŚWIERK
Za sztukę
DESKA ELEWACYJNA UTK 28X70 KLASA AB ŚWIERK SKANDYNAWSKI
Dostępność w magazynach
Za sztukę
Surowiec: świerk skandynawski
Wilgotność: 16-18% +- 2% (ogólnobudowlana)
- Opis
- Informacje dodatkowe
- Zapytaj o produkt







